华体会体育

双向压硬密封蝶阀运动示意图

作者:admin 发布时间:2022-07-20 浏览量:418

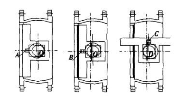
    蝶阀是部分回转阀门,其用途很广泛。双向压硬密封蝶阀属于其中一种,其运动示意图见图1。
    双向压硬密封蝶阀的手轮驱动阀杆绕O点旋转,阀杆上的偏心圆等宽凸轮机构顺时针转动带动蝶板从A点移动到B点,蝶板脱离阀体密封面。阀杆继续旋转90°,蝶板从B点移动到C点,蝶阀开启。
    蝶板从A点移动到B点,偏心等宽凸轮宽度等于蝶板轮槽宽度,偏心圆等宽凸轮和蝶板轮槽处于间隙配合。
    如果流体从双向压硬密封蝶阀流道向右流动时,流体的水动力矩驱使蝶板有向逆时针旋转的趋势,蝶板在开启位置时,有向关闭方向运动的趋势。蝶板从B点移动到C点,阀杆带动蝶板逆时针旋转90°,蝶阀关闭。

若介质从蝶阀流道向左流动时,由于偏心圆等宽凸轮和蝶板轮槽处于间隙配合,介质的水动力矩驱使蝶板向顺时针方向旋转,偏心圆等宽凸轮宽无法带动蝶板向开启方向旋转。


双向压硬密封蝶阀运动示意图

图1:双向压硬密封蝶阀运动示意图


  • 返回顶部
  • 15356228728
  • 在线咨询
  • 产品搜索
  • 添加好友
    二维码