华体会体育

华体会体育-华体会体育·(中国)官方网站
华体会体育-华体会体育·(中国)官方网站
  • 地址:温州经济技术开发区滨海园区三道三路570-2
  • 电话:0577-85885681
  • 传真:0577-86830681
  • 邮编:325025
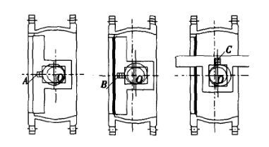
华体会体育 >> 行业动态 >> 双向压硬密封蝶阀运动示意图

双向压硬密封蝶阀运动示意图

来源:本站原创 作者:master 发布时间:2016-10-8 8:37:14 点击数:
    蝶阀是部分回转阀门,其用途很广泛。双向压硬密封蝶阀属于其中一种,其运动示意图见图1。
    双向压硬密封蝶阀的手轮驱动阀杆绕O点旋转,阀杆上的偏心圆等宽凸轮机构顺时针转动带动蝶板从A点移动到B点,蝶板脱离阀体密封面。阀杆继续旋转90°,蝶板从B点移动到C点,蝶阀开启。
    蝶板从A点移动到B点,偏心等宽凸轮宽度等于蝶板轮槽宽度,偏心圆等宽凸轮和蝶板轮槽处于间隙配合。
    如果流体从双向压硬密封蝶阀流道向右流动时,流体的水动力矩驱使蝶板有向逆时针旋转的趋势,蝶板在开启位置时,有向关闭方向运动的趋势。蝶板从B点移动到C点,阀杆带动蝶板逆时针旋转90°,蝶阀关闭。

若介质从蝶阀流道向左流动时,由于偏心圆等宽凸轮和蝶板轮槽处于间隙配合,介质的水动力矩驱使蝶板向顺时针方向旋转,偏心圆等宽凸轮宽无法带动蝶板向开启方向旋转。


双向压硬密封蝶阀运动示意图

图1:双向压硬密封蝶阀运动示意图


商标 九特微信公众平台
主营:全焊接球阀、埋地式全焊接球阀、焊接式球阀、硬密封蝶阀、双向压硬密封蝶阀
地址:温州经济技术开发区滨海园区三道三路570-2    联系电话:0577-85885681    
传真:0577-86830681    邮箱:     邮编:325025
Copyright © 2015 华体会体育-华体会体育·(中国)官方网站 All Rights Reserved   网站地图 
技术支持:温州中网
分享到:
分享到 QQ空间 新浪微博 腾讯微博 人人 微信